- 物件PR :
-
のどかな住宅地が広がる村角町の高性能築浅住宅です。
■断熱・耐震・気密性の高いスーパーウォール工法住宅(ZEH住宅)
■太陽光発電システム搭載
■100坪を超える敷地で広い人工芝はワンちゃんを飼っている方にもおすすめです
■築浅の為、クリーニングのみでお住まい頂けます
| 物件名 | 村角町 中古戸建 | 築年月 | 2021/8 |
|---|---|---|---|
| 価格 | 3,900万円 中古戸建 |
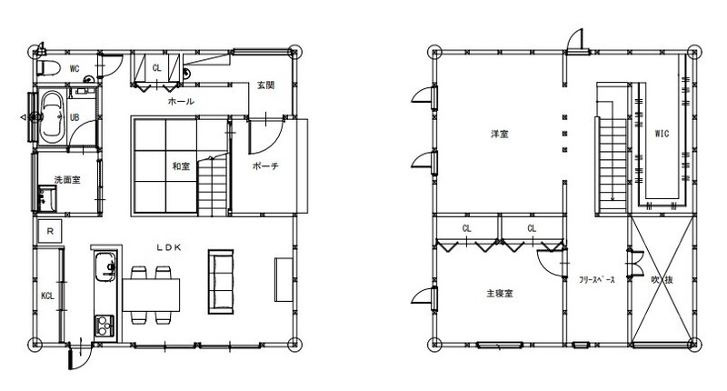
間取 | 3SLDK |
| 土地面積 | 334.74m² | 建物(専有)面積 | 107.64m² |
| 月々支払い例 | 106,351円 全額借入(頭金0、ボーナス払い0)、変動金利1.41%、40年返済の場合。 | ||
オススメポイント
村角町は大島通線と山崎街道の間にある宮崎市北部のエリア。昔から農家の方々が住んでいた住宅地で、周囲は緑豊かで落ち着いた雰囲気。地域の住民がゆったりと暮らす穏やかなエリアながらも、北は再開発の楽しみな花が島、芳士エリア、南は様々な店舗の建ち並ぶ大島エリアにアクセスしやすい便利な地域です。
このエリアにある築浅のスーパーウォール工法住宅のご紹介です。
スーパーウォール工法は、日本の伝統工法である木造軸組工法と、ツー・バイ・フォー工法で知られている北米発祥の壁式工法のそれぞれの長所を組み合わせ、高性能なスーパーウォールパネルと高断熱サッシ・ドア、計画換気システムが生み出す、高気密・高断熱・高耐震構造の住宅(スーパーウォールとは、硬質ウレタンフォームを使用した気密性・断熱性が非常に高いパネル)。
家全体が断熱材にすっぽりと包まれる為、1年を通して快適に過ごせる断熱性・気密性、建物全体で揺れを抑え、ねじれも生じにくい高耐震性を誇る高性能住宅です。
この性能もさることながら、広い人工芝のある庭、北欧インテリアを意識した温かな雰囲気、オーナー様が新築を建てる際の思いが随所に表れていて、とても快適に暮らせそうです。
性能、デザイン、とても大切に作られた住宅だと思います。
※オーナー様居住中の為、ご内覧は日程調整が必要です。早めのご連絡をお願い致します。
※市街化調整区域ですが、既存宅地の為、どなたでも居住、再建築可能となります。
このエリアにある築浅のスーパーウォール工法住宅のご紹介です。
スーパーウォール工法は、日本の伝統工法である木造軸組工法と、ツー・バイ・フォー工法で知られている北米発祥の壁式工法のそれぞれの長所を組み合わせ、高性能なスーパーウォールパネルと高断熱サッシ・ドア、計画換気システムが生み出す、高気密・高断熱・高耐震構造の住宅(スーパーウォールとは、硬質ウレタンフォームを使用した気密性・断熱性が非常に高いパネル)。
家全体が断熱材にすっぽりと包まれる為、1年を通して快適に過ごせる断熱性・気密性、建物全体で揺れを抑え、ねじれも生じにくい高耐震性を誇る高性能住宅です。
この性能もさることながら、広い人工芝のある庭、北欧インテリアを意識した温かな雰囲気、オーナー様が新築を建てる際の思いが随所に表れていて、とても快適に暮らせそうです。
性能、デザイン、とても大切に作られた住宅だと思います。
※オーナー様居住中の為、ご内覧は日程調整が必要です。早めのご連絡をお願い致します。
※市街化調整区域ですが、既存宅地の為、どなたでも居住、再建築可能となります。
物件詳細情報
| 物件番号 | 38125 | ||
|---|---|---|---|
| 共益費・管理費 | 円 | 修繕積立金 | 円 |
| 所在地 | 宮崎県宮崎市村角町橘尊 | ||
| 学校区 |
東大宮小学校(約1900m) 東大宮中学校(約800m) |
||
| 交通 | JR日豊本線 蓮ヶ池駅 徒歩12分 | ||
| 駐車場・駐車場区分・駐車場備考 | 空有 | ||
| 現況 | 居住中 | 引渡/入居時期 | 相談 |
| 取引態様 | 仲介 | ||
建物
| 建物構造 | 木造 | 計測方式 | |
|---|---|---|---|
| 建物階数(地上) | 地上2階 | 建物階数(地下) | |
| 部屋階数 | 階 | ||
| 向き | バルコニー | m² | |
| 間取内容 | |||
土地
| 土地権利 | 所有権 | ||
|---|---|---|---|
| 地目 | 宅地 | 土地面積計測方式 | 公簿 |
| 用途地域 | 無指定 | 都市計画 | 市街化調整区域 |
| 建ぺい率 | 70% | 容積率 | 200% |
| 地勢 | 平坦 | 私道負担面積 | m² |
| セットバック | 無 | セットバック量 | m² |
| 接道状況 | 一方 | 国土法届出 | |
| 接道方向1 | 北 | 接道間口1 | m |
| 接道種別1 | 公道 | 接道幅員1 | m |
| 位置指定道路1 | |||
| 接道方向2 | 接道間口2 | m | |
| 接道種別2 | 接道幅員2 | m | |
| 位置指定道路2 | |||
その他
| 設備・条件 | |||
|---|---|---|---|
| 自社物 | 状態 | 売出中 | |
詳細地図
※物件掲載内容と現況に相違がある場合は現況を優先と致します。

















